Desenho de Galpão Metálico: Pranchas, Detalhes e Simbologia
Desenho de galpão metálico é a linguagem entre o engenheiro que projeta, o montador que executa e a prefeitura que aprova. Saber ler e produzir esses desenhos é o que separa quem entende de estrutura de quem está só executando no cheiro. Aqui você vê o que deve constar em cada prancha, como interpretar os detalhes e qual formato usar em cada situação.

Desenho técnico de galpão é o conjunto de pranchas que representa o projeto em escala, com cotas, simbologia e informações suficientes para execução. Não é uma ilustração — é um documento técnico com convenções normatizadas pela ABNT.
Cada prancha tem uma função específica no projeto. Juntas, elas respondem a todas as perguntas que vão surgir na obra: onde fica cada pilar, qual o perfil de cada barra, como é a ligação no cume, como o chumbador entra na sapata.

Vista de cima da estrutura. Mostra a posição de cada pilar com coordenadas em relação aos eixos, o espaçamento entre pórticos (modulação), as vigas de travamento e os contraventamentos. É a prancha que o montador usa para locar os chumbadores na fundação.

Vista de cima da cobertura. Mostra as terças, a cumeeira, as calhas, os rufos e o sentido de escoamento da água. Define o espaçamento das terças e o tipo de fixação na tesoura. Essencial para quem vai comprar e instalar a telha.
As elevações (frontal e lateral) mostram a altura total, o pé-direito, a inclinação do telhado e o fechamento lateral. O corte transversal mostra a seção da estrutura — a forma da tesoura ou treliça, os contraventamentos verticais e a distribuição de cargas nos apoios.

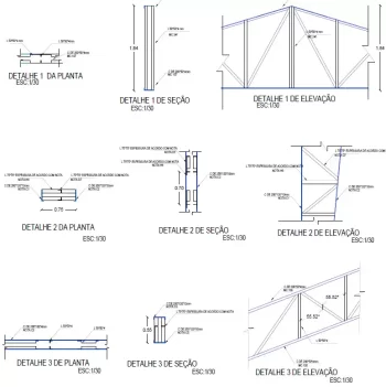
Os detalhes são as pranchas mais críticas para a execução. Cada ligação importante do projeto tem seu próprio detalhe em escala ampliada (1:10 ou 1:20):

Todo detalhe que especifica solda usa símbolos normatizados pela ABNT NBR 7165. O símbolo de solda tem três partes:
Todo projeto que especifica solda deve ter legenda explicando os símbolos utilizados. Montador que não consegue ler simbologia de solda executa a ligação errada — e ligação errada em nó de treliça é problema estrutural, não estético.
| Situação | Formato |
|---|---|
| Consulta em obra | |
| Aprovação na prefeitura | PDF (impressão em escala) |
| Edição e adaptação do projeto | DWG |
| Medição de distâncias e quantitativos | DWG |
| Arquivamento definitivo | PDF + DWG |
O projeto nasce em DWG (AutoCAD ou equivalente) e é exportado para PDF para entrega. Guardar os dois formatos é boa prática — o PDF não muda e serve como referência histórica; o DWG permite alterações futuras sem redesenhar do zero.
Quem calcula com software estrutural específico para galpão não precisa desenhar manualmente — o programa gera os desenhos automaticamente a partir do modelo calculado. Isso garante que o desenho está sempre coerente com o cálculo: se o perfil muda no dimensionamento, o desenho atualiza junto.
O eGalpão faz esse processo para galpões metálicos: você entra com os dados do projeto, o software calcula e gera automaticamente as pranchas estruturais e a lista de materiais. Nenhuma prancha desenhada manualmente que pode divergir do cálculo.
Conjunto de pranchas em escala com cotas e simbologia normatizada — plantas, cortes, elevações e detalhes — que representa o projeto e permite a execução e a aprovação na prefeitura.
Planta baixa estrutural, planta de cobertura, elevações frontal e lateral, corte transversal, detalhes de fundação, detalhes de ligação (chapa de base, cume, beiral, terça), lista de materiais e simbologia.
PDF é para consulta e aprovação — não editável. DWG é o formato nativo do AutoCAD, editável, onde o projetista trabalha. O projeto nasce em DWG e é entregue em PDF para obra e prefeitura.
Símbolos normatizados pela ABNT NBR 7165 que indicam tipo de solda, posição, tamanho do cordão e acabamento. Todo projeto que especifica solda deve ter legenda com esses símbolos.
Plantas e elevações gerais: 1:50 ou 1:100. Detalhes de ligação: 1:10 ou 1:20. Detalhes de solda: 1:5 ou 1:2. A escala deve ser indicada em cada prancha.
Se você monta galpões e ainda faz o dimensionamento na mão ou depende de terceiros para calcular, o eGalpão foi feito para o seu dia a dia. O software calcula automaticamente as cargas, os esforços e os perfis de estrutura metálica — e ainda gera o memorial de cálculo e a lista de materiais pronta para compra.
Usado por serralheiros, montadores e metalurgias em todo o Brasil, o eGalpão reduz o tempo de orçamento e elimina retrabalho na obra.