Como Calcular Treliça Metálica: passo a passo e erros que mais acontecem
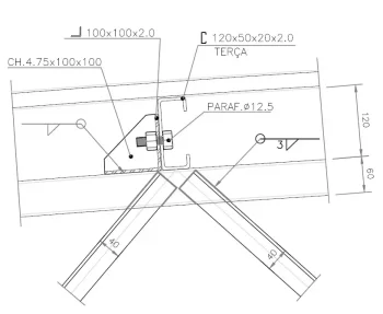
Calcular treliça metálica exige muito mais do que traçar triângulos. É preciso definir o espaçamento correto de terças, garantir que cada montante fique posicionado abaixo...
Ler artigo completo