Estrutura Metálica para Telhado: Tipos, Componentes e Cálculo
Estrutura metálica para telhado resolve dois problemas ao mesmo tempo: velocidade de montagem e capacidade de vencer vãos grandes sem pilar intermediário. Mas a escolha do tipo de estrutura, do perfil e do espaçamento de terças tem que vir do cálculo — não do que “sempre foi feito assim”. Aqui você entende os tipos, os componentes e o que precisa estar no projeto.

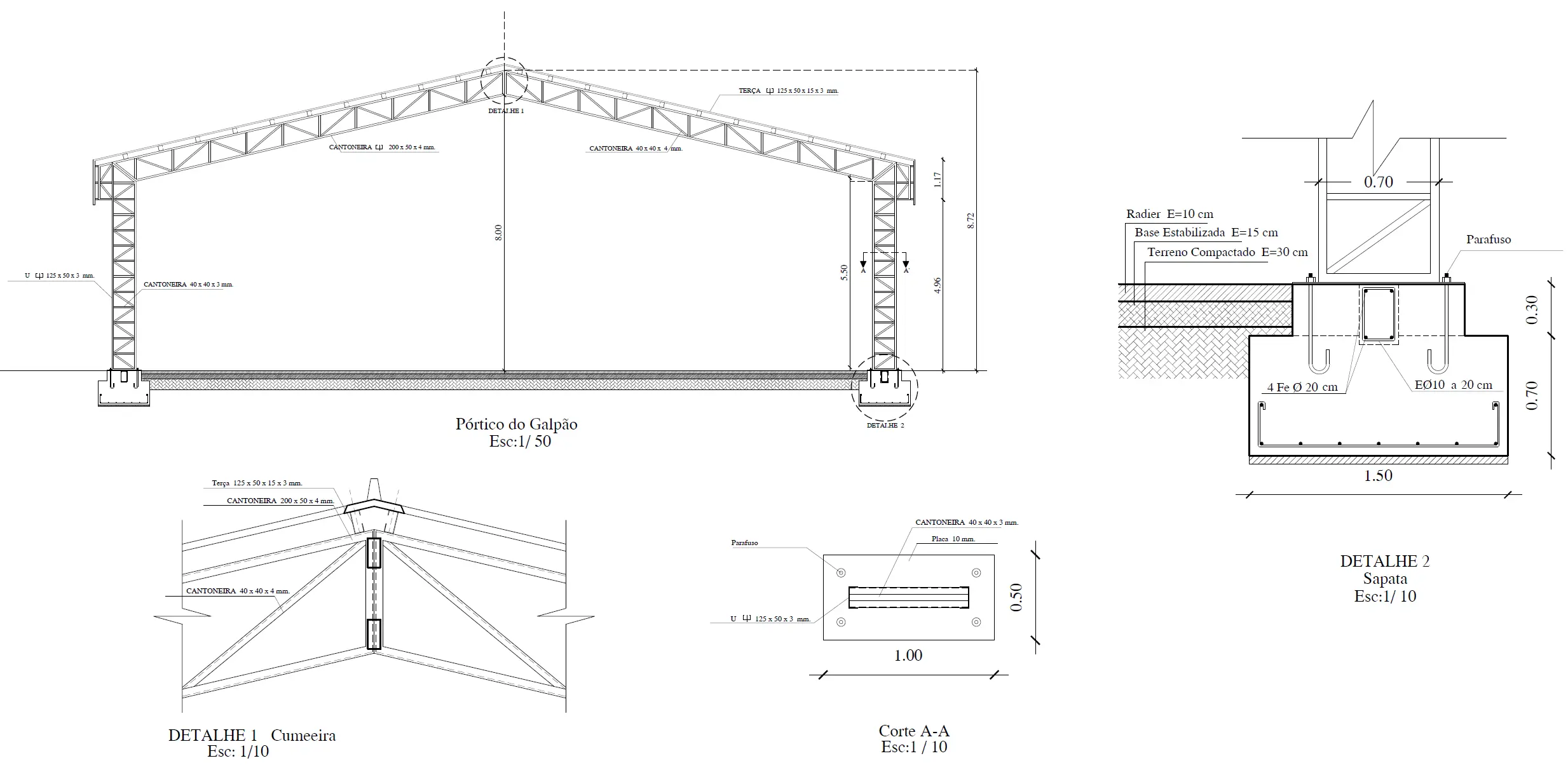
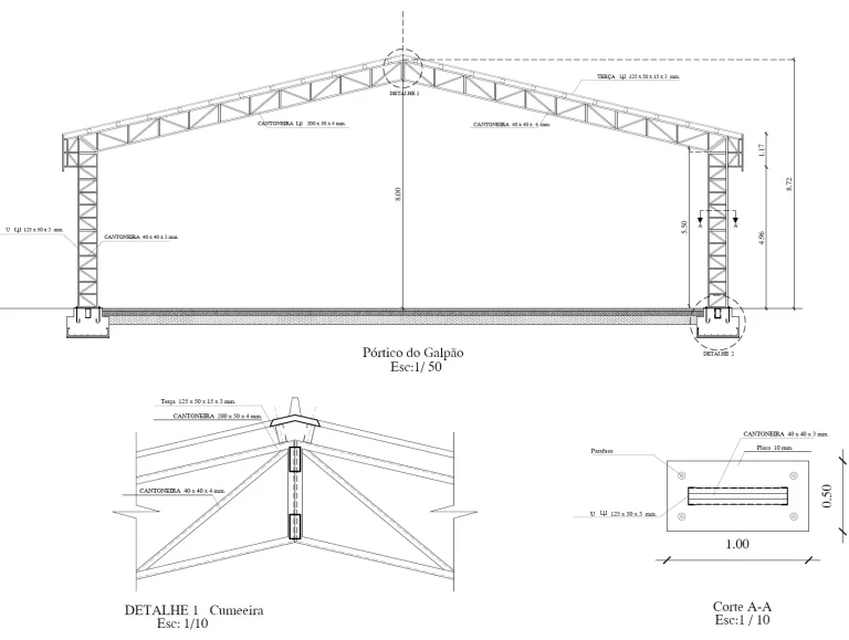
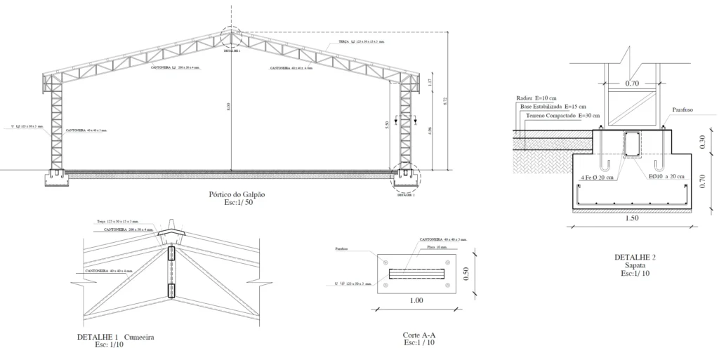
A tesoura é o sistema mais usado para coberturas de galpão e edificações de médio porte. Estrutura triangulada com banzo superior inclinado, banzo inferior horizontal e diagonais internas. Vence vãos de 6 m a 20 m com perfis leves — cantoneira dupla, perfil U enrijecido ou tubo retangular.
É o sistema de referência para quem trabalha com serralheria e metalurgia: fabricação simples, transporte em partes e montagem rápida em campo. Para vãos maiores, a altura da tesoura cresce (regra prática: altura ≈ vão/8 a vão/10).

Variação da tesoura com mais painéis internos, usada quando o vão é maior ou a carga é mais pesada. A geometria pode ser Pratt, Howe ou Warren — cada uma com uma distribuição diferente de esforços entre as barras. Para coberturas de galpão industrial com vãos acima de 20 m, a treliça é mais eficiente que a tesoura simples.
Para residências com telhado convencional (telha cerâmica ou fibrocimento), a estrutura metálica substitui as tesouras de madeira. Usa caibros e ripas em perfil U ou C laminado a frio, mais leve e resistente que a madeira. A montagem é mais limpa e a vida útil é maior — sem problema de brocas ou apodrecimento.
Para coberturas simples de garagem, área de serviço ou varanda, a estrutura é mais simples: vigas ou caibros metálicos apoiados em pilares ou na parede existente, com telha trapezoidal ou policarbonato. O dimensionamento é mais direto, mas ainda precisa considerar a carga de vento — especialmente em regiões de maior velocidade.

| Tipo de telha | Inclinação mínima | Espaçamento de terça |
|---|---|---|
| Trapezoidal de aço (0,5–0,65 mm) | 5% (≈3°) | 1,0 m a 1,5 m |
| Trapezoidal de aço (0,8–1,0 mm) | 5% (≈3°) | 1,5 m a 2,0 m |
| Sanduíche | 5% (≈3°) | Conforme fabricante |
| Fibrocimento ondulada | 10% (≈6°) | 0,5 m a 1,0 m |
| Cerâmica | 30% (≈17°) | 0,33 m a 0,45 m |
| Policarbonato | 5% (≈3°) | Conforme fabricante |
O espaçamento de terça correto vem do cálculo — a tabela acima é referência de mercado, não substituto do dimensionamento. Vento forte ou telha mais pesada reduz o espaçamento máximo.

O cálculo da estrutura metálica para telhado envolve três cargas principais:
Com essas cargas definidas, o cálculo determina o esforço em cada barra da tesoura e o perfil necessário. O eGalpão automatiza esse processo para coberturas de galpão — você entra com as dimensões e a localização, e o software aplica o vento da NBR 6123 e dimensiona a estrutura completa.
Telha trapezoidal de aço: mínimo 5% (≈3°). Fibrocimento ondulada: mínimo 10% (≈6°). Telha cerâmica: mínimo 30% (≈17°). Abaixo da inclinação mínima, a telha não drena e a infiltração é inevitável.
Para telha de 0,5 mm a 0,65 mm: 1,0 m a 1,5 m. Para telha mais espessa (0,8 mm a 1,0 mm): até 2,0 m. O espaçamento correto vem do cálculo com a carga de vento da região.
Sim. Qualquer estrutura portante precisa de projeto com ART do engenheiro responsável para aprovação na prefeitura e regularização do imóvel.
Para terças: perfil Z enrijecido laminado a frio. Para tesouras: cantoneira dupla, perfil U enrijecido ou tubo retangular. Para coberturas residenciais: caibro metálico em perfil U ou C.
Cobertura simples com tesoura e telha trapezoidal: R$ 120 a R$ 200/m². Coberturas com maior vão ou telha sanduíche: R$ 250 a R$ 400/m². O custo varia com o vão, a inclinação e o tipo de telha.
Se você monta galpões e ainda faz o dimensionamento na mão ou depende de terceiros para calcular, o eGalpão foi feito para o seu dia a dia. O software calcula automaticamente as cargas, os esforços e os perfis de estrutura metálica — e ainda gera o memorial de cálculo e a lista de materiais pronta para compra.
Usado por serralheiros, montadores e metalurgias em todo o Brasil, o eGalpão reduz o tempo de orçamento e elimina retrabalho na obra.