Escada Metálica – Vários Projetos para download

Projeto errado de escada metálica gera problema na entrega: degrau alto demais, inclinação fora da norma, guarda-corpo baixo. O cliente reclama, o Corpo de Bombeiros reprova na vistoria ou o montador refaz. Ter um projeto completo como referência elimina esses problemas antes de cortar o primeiro perfil.
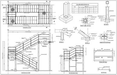
A Biblioteca de Projetos do Aço tem projetos de escadas metálicas em vários formatos — reta, em L, em U e de marinheiro — para os usos mais comuns em galpões e mezaninos. Cada projeto vem completo:

Além das escadas, a biblioteca tem os projetos de mezanino metálico, galpão de estrutura metálica e treliças — tudo que você precisa para o conjunto completo do galpão, não só a escada.
O eGalpão é o software de dimensionamento de galpões metálicos usado por serralheiros e montadores em todo o Brasil. Ele não calcula escadas — o foco é o galpão completo: pilares, treliças, ligações, cobertura e lista de materiais. Se a escada faz parte de um galpão que você está dimensionando, o eGalpão resolve a estrutura principal; o projeto da escada você encontra na biblioteca.
Os dois elementos que definem o conforto da escada são o piso (onde o pé pisa) e o espelho (altura do degrau). A NBR 9077 estabelece os limites:
Escada com espelho acima de 18,5 cm é escada de marinheiro — a norma muda. Com espelho abaixo de 16 cm, o passo fica raso demais e a pessoa tropeça. Quem monta escada e ignora isso vai ter reclamação na entrega.

A mais simples: duas longarinas laterais e degraus entre elas. Indicada para pé-direito até 2,5 a 3 m quando o espaço em planta permite o comprimento necessário. Mais fácil de fabricar e montar.
Dois lances em ângulo reto com patamar intermediário. Resolve quando não há espaço para o comprimento de um lance único ou quando a chegada da escada precisa mudar de direção. O patamar deve ter no mínimo a largura da escada.

Dois lances paralelos com sentidos opostos e patamar de inversão. Ocupa menos comprimento, mas exige largura para os dois lances lado a lado. Muito usada em galpões com mezanino onde o espaço em planta é restrito.

Degraus em barra chata ou vergalhão, inclinação próxima de 90°, largura mínima de 40 cm. Para acesso eventual de manutenção — não para circulação. Regulamentada pela NBR 14521. Muito usada em galpões para acesso ao telhado, reservatórios elevados e plataformas de equipamento.
Gira em torno de um eixo central. Menor área em planta de todos os tipos — diâmetro de 1,2 a 2,0 m. Contra: conforto menor, não atende NBR 9077 como rota de saída de emergência, e a fabricação é mais trabalhosa (cada degrau tem geometria diferente).
Mezanino é o uso mais comum de escada metálica em galpão. O projeto precisa considerar o pé-direito do mezanino (define o número de degraus e a inclinação), o espaço disponível em planta (define o tipo: reta, L ou U) e a largura da escada (mínimo 1,20 m para trânsito regular; 0,80 m para uso exclusivo do operador).
Um lance reto com 17 degraus de piso de 28 cm precisa de cerca de 5 m de comprimento em planta. Se não cabe, a solução é escada em L ou U — a biblioteca tem projetos das duas configurações para os pés-direitos mais comuns.
| Norma | O que regula |
|---|---|
| NBR 9077 | Dimensões de degrau, largura e inclinação |
| NBR 14718 | Guarda-corpo — altura mínima (1,10 m) e resistência |
| NBR 14521 | Escadas de marinheiro — dimensões e fixação |
| NBR 8800 / 14762 | Dimensionamento da estrutura de aço |
Para edificações comerciais e industriais, o projeto precisa de ART do engenheiro responsável. Sem ART, a escada pode ser vetada na vistoria do Corpo de Bombeiros.
Pela NBR 9077: piso mínimo de 28 cm, espelho entre 16 e 18,5 cm, relação 2E + P entre 63 e 65 cm. Largura mínima de 1,20 m para uso comum. Inclinação entre 25° e 45°.
Escada de marinheiro tem inclinação próxima de 90°, degraus estreitos e é para acesso eventual de manutenção — regulamentada pela NBR 14521. Escada convencional tem inclinação entre 25° e 45° e é projetada para circulação frequente, atendendo a NBR 9077.
Sim, em qualquer tipo de edificação — desde que em conformidade com a NBR 9077 e com estrutura calculada para as cargas de uso. Para edificações comerciais e industriais, exige ART do engenheiro responsável.
Planta com posição da escada, corte longitudinal com todos os degraus dimensionados, elevação frontal, detalhe da estrutura (longarinas, cantoneiras, solda), detalhe do guarda-corpo e corrimão, e lista de materiais. Para uso comercial e industrial: memorial de cálculo e ART.